10
$35 Rent
Listed 8 hours ago
2 Eastern Avenue, #4
· 0
· 0
· -
· -
Key Facts
Key facts for 2 Eastern Avenue, #4
Property Type
Commercial
Parking
Covered
MLS #
C12495420
Size
-
Basement
-
Listed on
2025-10-31
Lot size
0 x 0.0
Tax
-
Days on Market
1
Approximate Age
-
Maintenance Fee
-
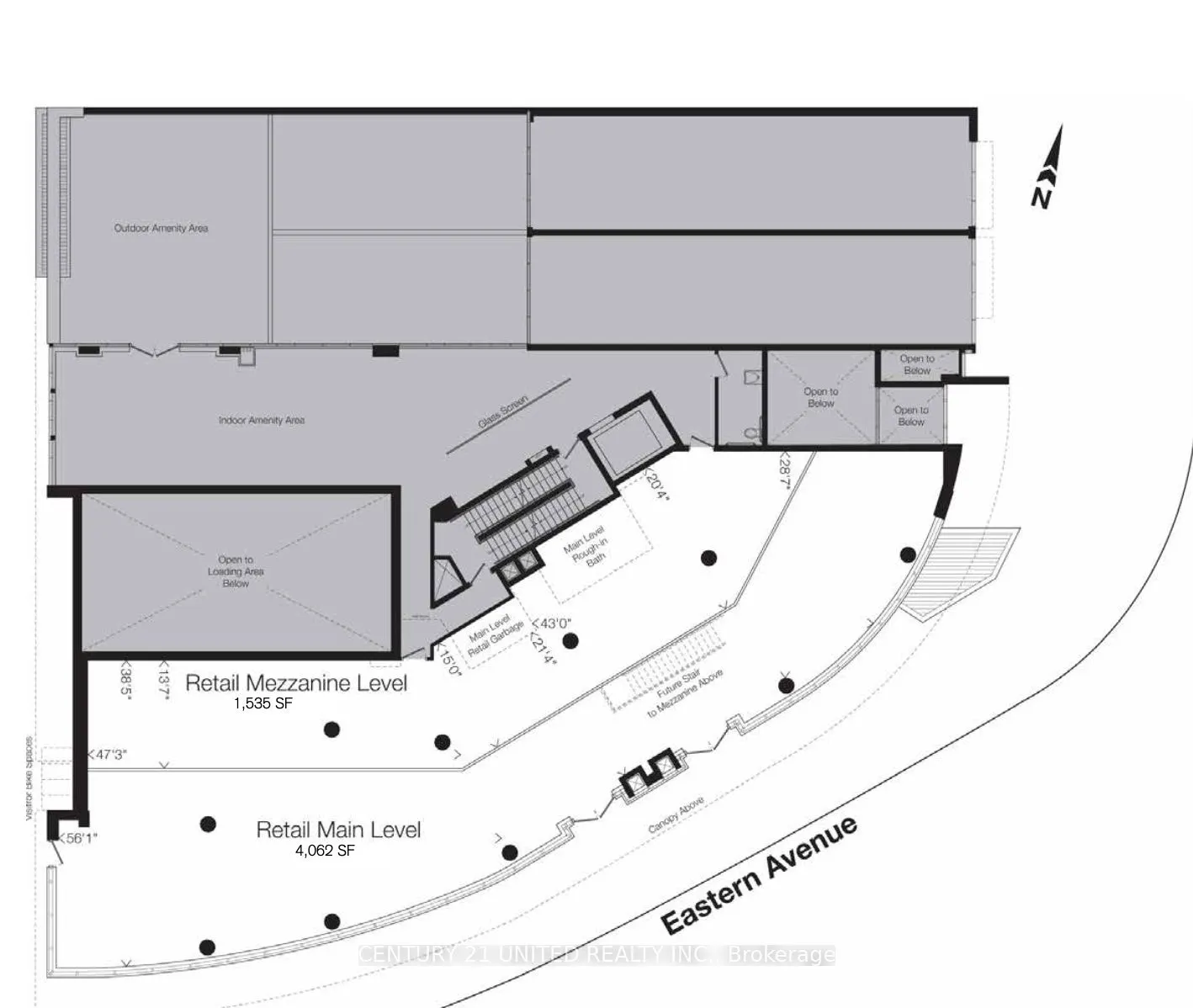
Description
This 5,597 sq. ft. street front commercial condo unit features excellent corner exposure with over 50 feet of frontage and includes one surface parking spot. This unit consists of a ground floor and a fully constructed mezzanine with 20-foot ceilings. Located in the vibrant areas of the Distillery D...istrict, Canary District, and West Don Lands. The unit is minutes from King Street East and the 504 streetcar, with easy access to the DVP and Gardiner Expressway. It is part of Trinity Lofts, an eight-story residential development by Streetcar Developments and Dream, completed in 2013. This location is ideal for businesses seeking to thrive in a continuously evolving area of downtown Toronto. Zoning allows for many permitted uses. Property also available for Sale MLS #C8266440. **EXTRAS** Condo fees include P1-03 Parking spot
Similar Properties (No results)
Courtesy of: CENTURY 21 UNITED REALTY INC.